Тристаен апартамент

€ 267.665 2348 € / кв.м.
Младост 4, ,
add to favorites

Тристаен апартамент

Phone:
Email:

Contact Me

Property Enquiry

Your search results

БЕЗ КОМИСИОН!

Cozy Home Agency представя на Вашето внимание, сграда с АКТ 14 в гр. София, ж.к.Младост 4!

Район с изградена инфраструктура, богато озеленяване в междублоковото пространство и в близост до метростанция Бизнес парк.

Сградата се отличава с модерна архитектура, а общите части ще бъдат луксозно изпълнени. Стълбището ще е изцяло с естествена настилка от мрамор или гранит, а асансьорите ще са от висок клас. Паркирането е решено с подземни и партерни паркоместа и гаражи.

Отопление: Централен ТЕЦ, Електричество

В близост до градски транспорт

Гъвкава схема на плащане!

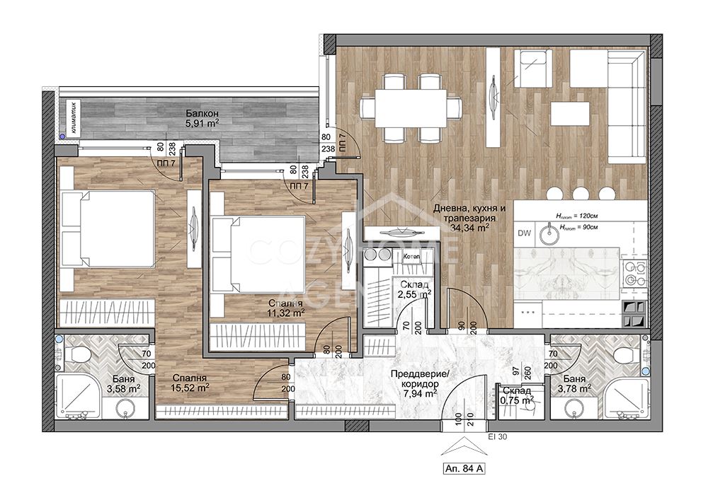
Приложена е схема на тристаен апартамент:

Етаж: 6 от 9

Площ: 113,90 кв.м

Разпределение:
Входно антре
Голяма дневна с кухненски бокс
Две спални
Две бани с тоалетни
Склад
Два балкона

Агенцията предлага безплатно съдействие за консултация с кредитен посредник за ипотечно финансиране.

Всички наши огледи се провеждат с протокол за оглед.

Оферта  246

За информация и оглед: 0882424017 Бирсен Шукриева

Address: Младост 4
Property Id: 26408
Price: € 267.665 2348 € / кв.м.
Property Size: 114 м2
Rooms: 3
Bedrooms: 2
Bathrooms: 2
Година на строителство: 2026
Гараж: 1
Етаж: 6
Брой Етажи: 9
Ремонтиран
Гараж
Паркомясто
Асансьор
След акт14
В строеж
Необзаведен
ТЕЦ
Отопление с електричество
Отопление с газ
Тухла

Similar Listings

compare

Без комисионна за купувачи на агенцията! ...

€ 282.497 2825 € / кв.м.
2
bedrooms
2
baths
100 м2
size
adminsmdl
април 6, 2026
compare

Без комисионна за купувачи на агенцията! ...

€ 345.475 3085 € / кв.м.
2
bedrooms
2
baths
112 м2
size
adminsmdl
април 6, 2026
compare

Без комисионна за купувачи на агенцията! ...

€ 323.130 2992 € / кв.м.
2
bedrooms
2
baths
108 м2
size
adminsmdl
април 6, 2026

Compare

0882 424 017